clegg landscape architecture site plans
site photo clegg landscape architecture portfolio
blue ridge mountains swannanoa nc
Sedum ternatum woodland stonecrop
rattlesnake plantain
blue ridge mountains swannanoa nc
mountain stream western north carolina
rattle snake plantain native plants blue ridge mountains
hickory nuts native trees nc
native plants blue ridge nc
hickory tree native blue ridge mountains

Residential Planning

Swannanoa, NC

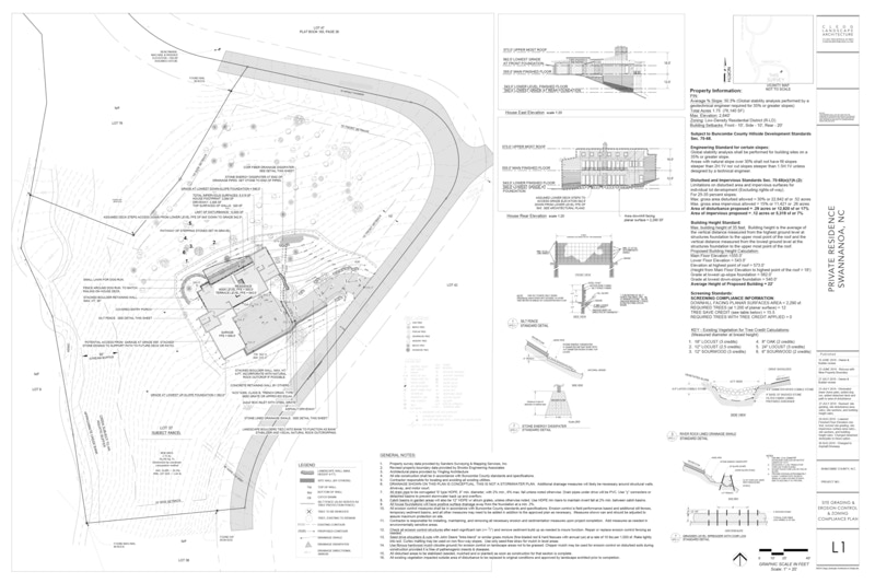
Client’s Vision & Design Parameters: This property falls in a county regulated ‘Steep Slope’ protected area. Specific development ordinances are in place to protect mountain areas and guide safe building practices. The home owner is also the architect on this project and prioritized the building’s relationship to the land.


Design Response: The building’s finished floor elevation and orientation were set in harmony with the existing topography. There are natural rock outcroppings, a stream, and native vegetation on property that are protected during construction and highlighted through design to draw connection between nature and the house. Long range views from the house to the mountain ridge beyond are framed with selective limbing of trees. Dead or diseased trees that cannot be saved along with any invasive vegetation are removed in tandem with the clearing of the building envelope.


CLA’s Roll: Design, Issuing Plans for Development Permitting, On-site design consulting  

native woodland plant blue ridge mountians
Adiantum hispidulum native maidenhair fern nc
native mushroom blue ridge mountains

Licensed landscape architect, NC

Serving Western North Carolina

©2025 Clegg Landscape Architecture & Design, PLLC.

This website makes use of cookies. Please see our privacy policy for details.

OK